授权公布号:CN220238476U
一种脱墨再生浆漂白剂添加装置
有效
申请
2023-04-14
申请公布
1970-01-01
授权
2023-12-26
预估到期
2033-04-14
| 申请号 | CN202320829991.9 |
| 申请日 | 2023-04-14 |
| 授权公布号 | CN220238476U |
| 授权公告日 | 2023-12-26 |
| 分类号 | B01F35/83;D21C9/10;B01F35/11;B01F35/21;B08B9/032;B01F101/47N |
| 分类 | 一般的物理或化学的方法或装置; |
| 申请人名称 | 浙江景兴纸业股份有限公司 |
| 申请人地址 | 浙江省嘉兴市平湖曹桥街道 |
专利法律状态
2023-12-26
授权
状态信息
授权
摘要
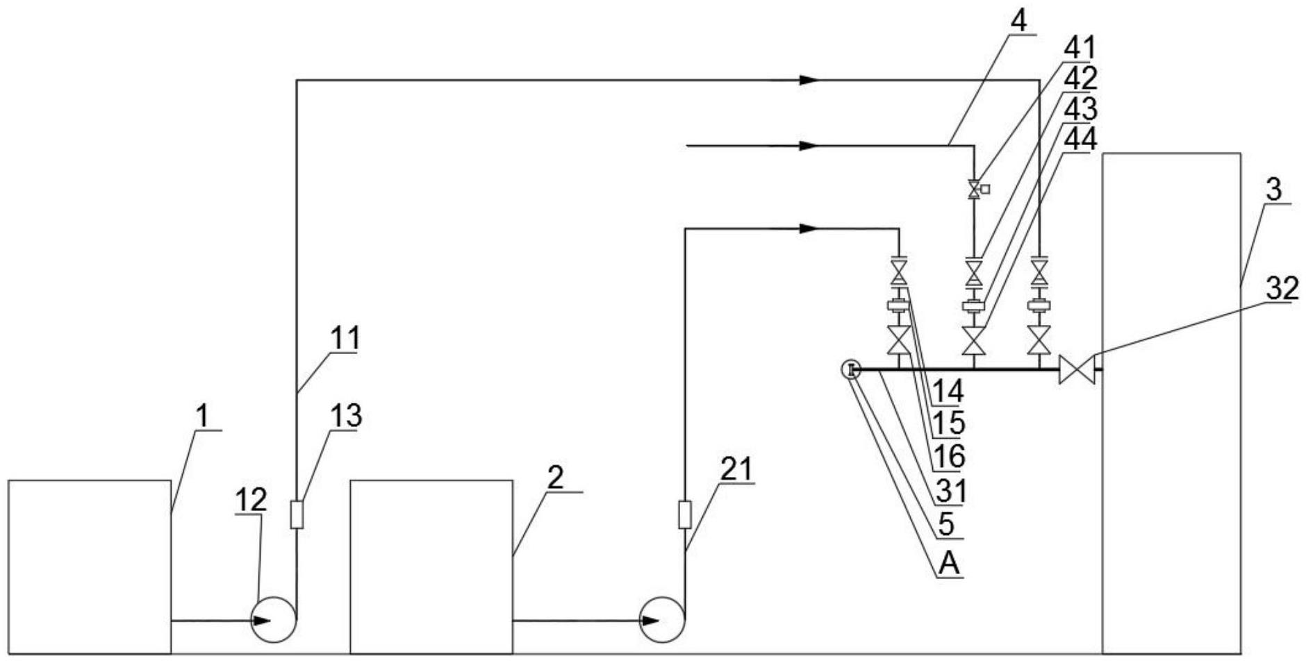
本实用新型涉及一种脱墨再生浆漂白剂添加装置,包括漂白主剂桶、漂白助剂桶、设置在所述漂白主剂桶上的第一管道、设置在所述漂白助剂桶上的第二管道和漂白浆液的漂白桶;所述漂白桶上设置有第三管道;所述第三管道连通所述第一管道与所述第二管道;所述第三管道上还设置有第四管道;所述第四管道的另一端连接清水源;所述第三管道远离所述漂白桶的一端设置有开关装置。解决了DN20‑DN25这两种化学品混合后产生的漂白剂容易结垢,很容易把添加管道堵塞,导致漂白剂添加故障,影响浆料漂白效果,导致浆料白度不达标。


